Proyectos 2008
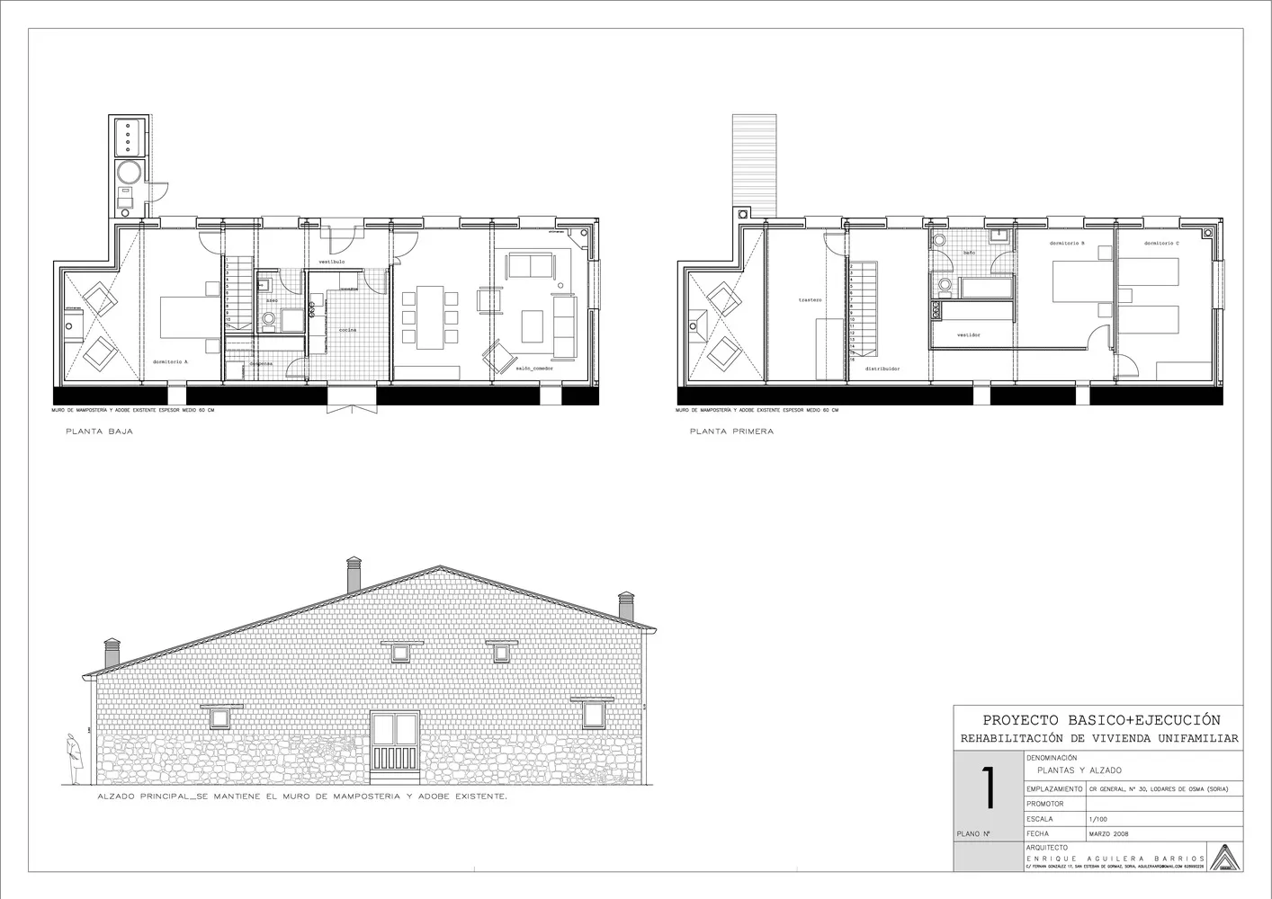
Vivienda en Lodares de Osma
Las conservación de un potente muro de adobe existente de una construcción previa dota a la nueva vivienda de una identidad acorde al entorno y a la arquitectura más popular que, desgraciadamente, se está perdiendo.
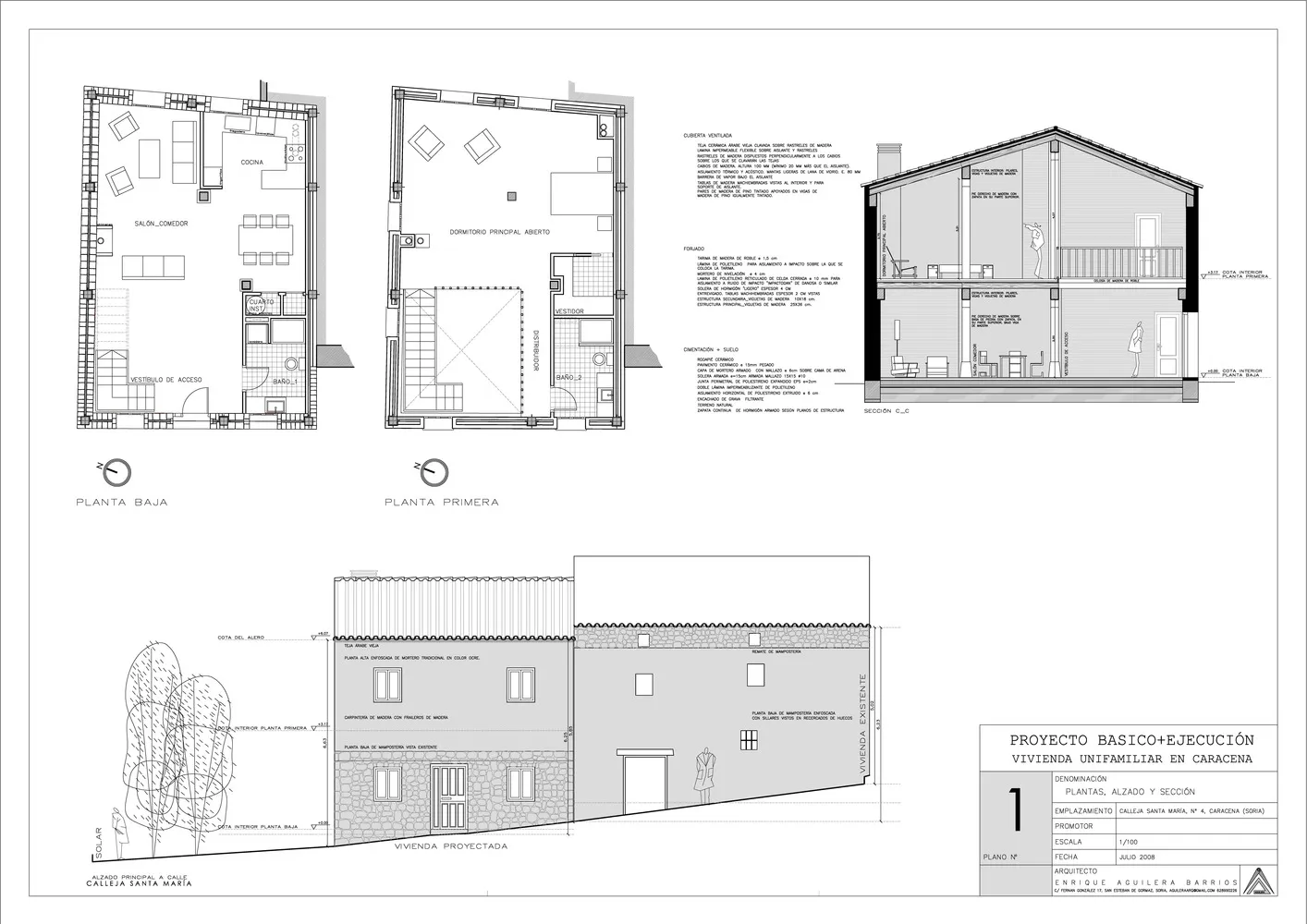
Vivienda en Caracena
Un cerramiento exterior "aburrido" adaptado a las prescripciones patrimoniales del entorno da paso a un interior diáfano donde un gran vestíbulo de doble altura forma el elemento central de la vivienda.
Vivienda en Ines
En los comienzos se albergan ciertas dudas que en todo caso suponen un gran aprendizaje para trabajos posteriores.
Vivienda en Piquera de San Esteban
La vivienda, finalmente no realizada, planteaba múltiples juegos espaciales interiores articulados en torno a los núcleos de comunicación y a un gran lucernario.
