Proyectos 2026
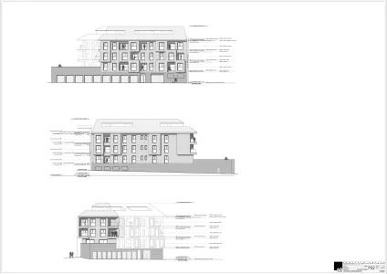
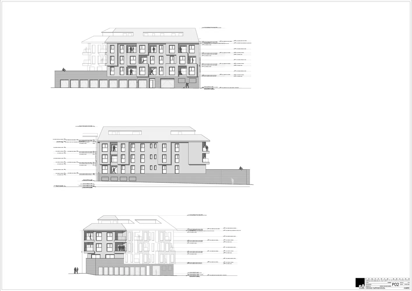
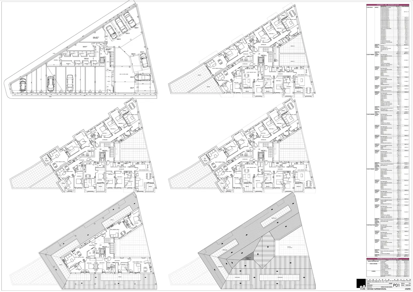
Bloque plurifamiliar de 18 viviendas en San Esteban de Gormaz
Las Terrazas del Barco busca la consecución de una imagen exterior potente en la que domine la claridad volumétrica junto con una imagen serena y contemporánea. La composición de la fachada se articula mediante cuerpos salientes y terrazas voladas que aportan profundidad, ritmo y una relación directa entre las viviendas y el espacio exterior en contacto con el río Duero. El uso de tonos claros en los paramentos, combinado con la cubierta inclinada de teja cerámica, establece un diálogo equilibrado entre tradición y modernidad. Las terrazas, protegidas y bien orientadas, se convierten en una extensión natural del espacio interior. El basamento continuo de granito refuerza la lectura urbana del conjunto y ordena su relación con la calle.
Vivienda unifamiliar prefabricada en San Esteban de Gormaz
Se proyecta una vivienda prefabricada mediante la yuxtaposición de cinco cuerpos geométricos diferenciados que se ensamblarán en obra consiguiendo una imagen de conjunto unitaria, racional y contemporánea donde se ha cuidado enormemente la relación con el entorno y la orientación de la parcela, lo que determina la posición exacta de cada cuerpo.
Bloque plurifamiliar de 6 viviendas en El Burgo de Osma
Este edificio proyectado como el hermano pequeño del bloque plurifamiliar de 10 viviendas situado al otro lado de la calle sigue sus mismos criterios formales y compositivos buscando la consecución de una imagen de conjunto unitaria.
Vivienda unifamiliar en Zayas de Torre
Se proyecta una vivienda que busca una configuración ordenada en torno a un eje principal que divide a la vivienda en dos zonas, de día y de noche. El cuerpo de día lo constituye el salón-comedor-cocina mientras que el cuerpo de noche alberga las tres habitaciones. Esta configuración posibilita la clásica planta en U en torno a un patio central. Las fachadas en contacto con la vía pública tienen un carácter marcadamente ciego en relación a la fachada interior privada abierta al patio, al sur, donde los grandes ventanales buscan la apropiación de las vistas y de la intimidad propia del patio.
