Proyectos 2011
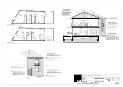
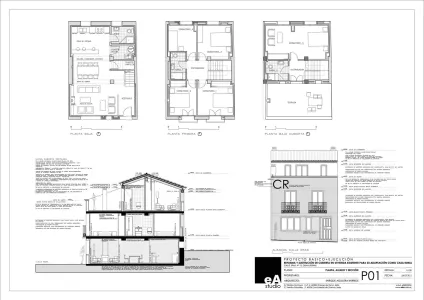
Viviendas en Rebollar
La arquitectura popular del entorno supone el punto de partida de estas dos viviendas que buscan una adaptación material a las formas tradicionales.
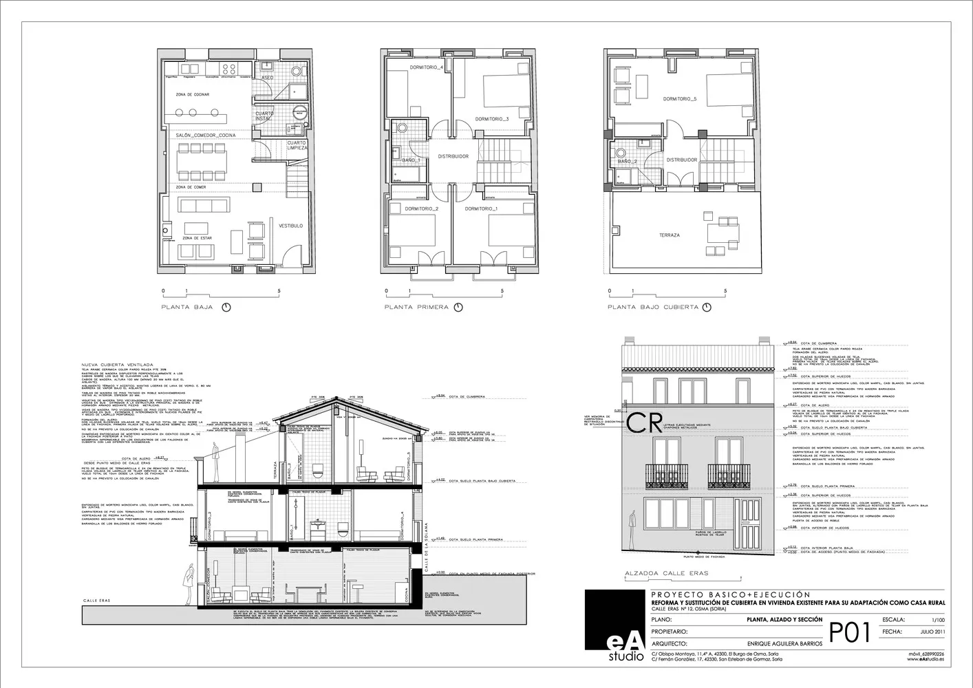
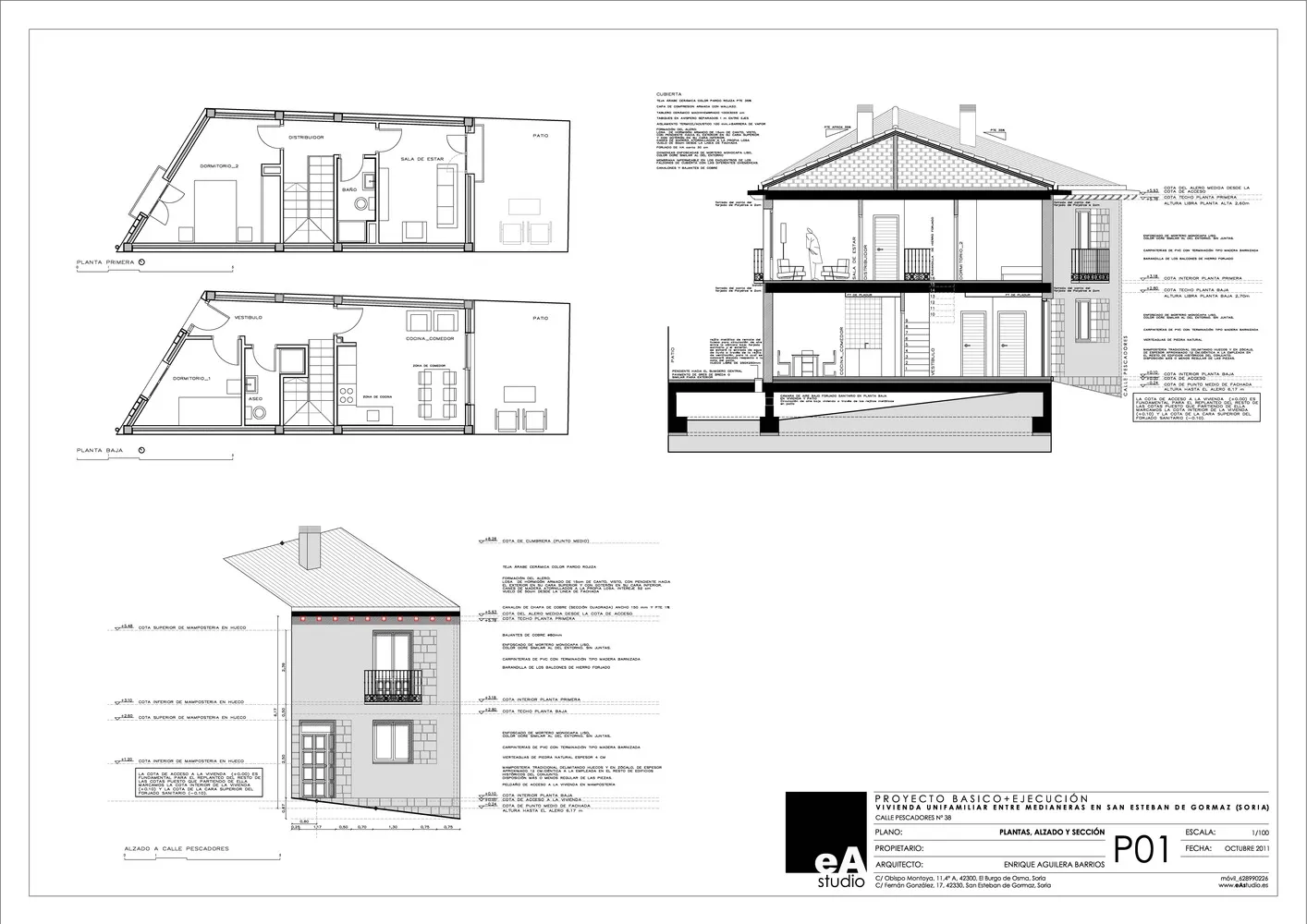
Reforma de vivienda en Osma
Proyectada como casa rural y concluida como vivienda particular, refleja exteriormente pero sobre todo en su interior la personalidad y el buen gusto del promotor.
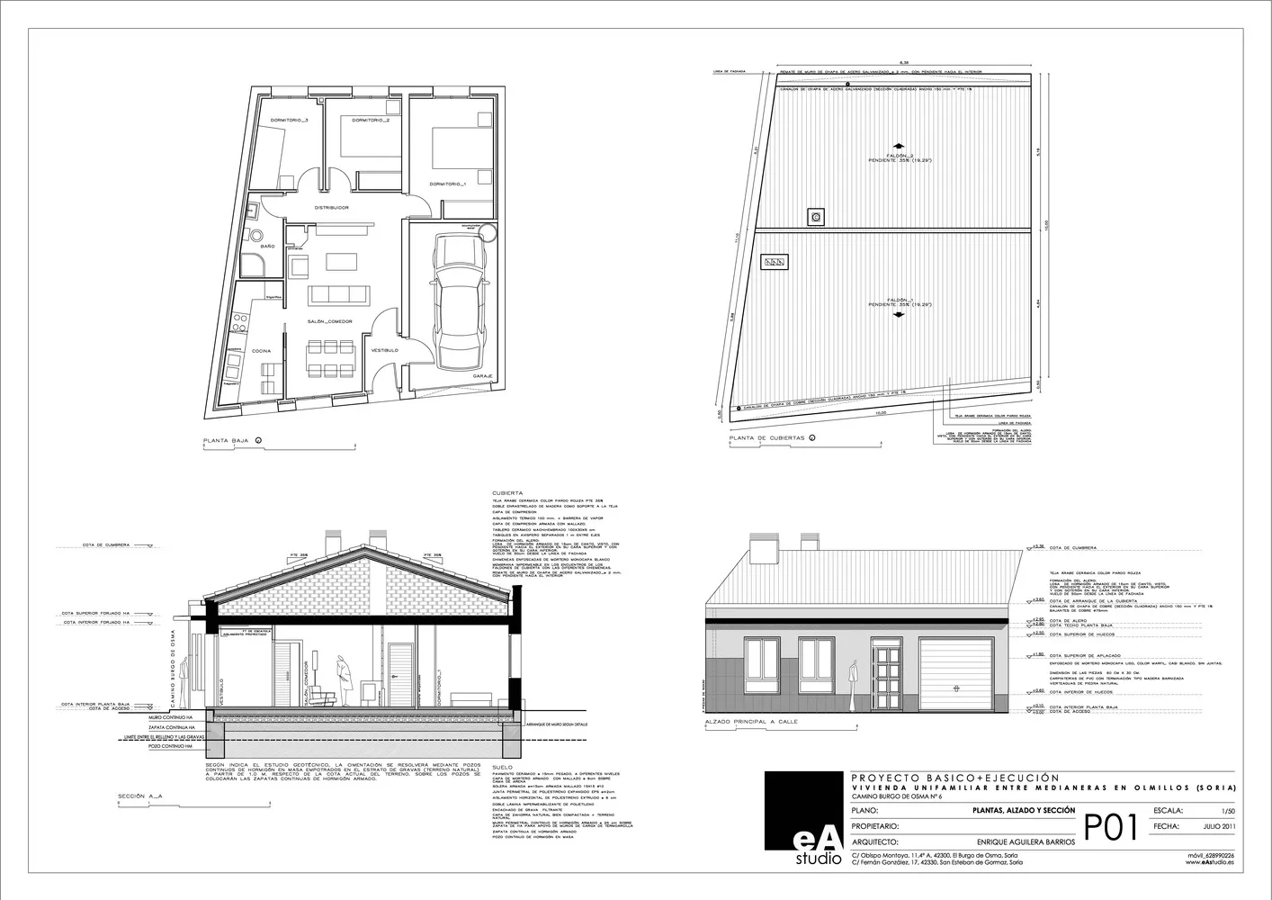
Vivienda en Olmillos
Su limitada superficie construida y el amplio programa que incluye una cochera y tres habitaciones implicó una optimización de los espacios y los recorridos.
