Proyectos 2023
Vivienda en Cubillejo de Lara (Burgos)
Se plantea una intervención desde el máximo respeto a la construcción original, cuyo cerramiento perimetral de mampostería se conserva, dotando a la nueva vivienda de una fuerte personalidad.
Reforma y ampliación de vivienda en Quintanas Rubias de Abajo
Unas nuevas necesidades funcionales llevan a los propietarios a ampliar su vivienda. El proyecto trata de mantener las señas de identidad de la construcción original.
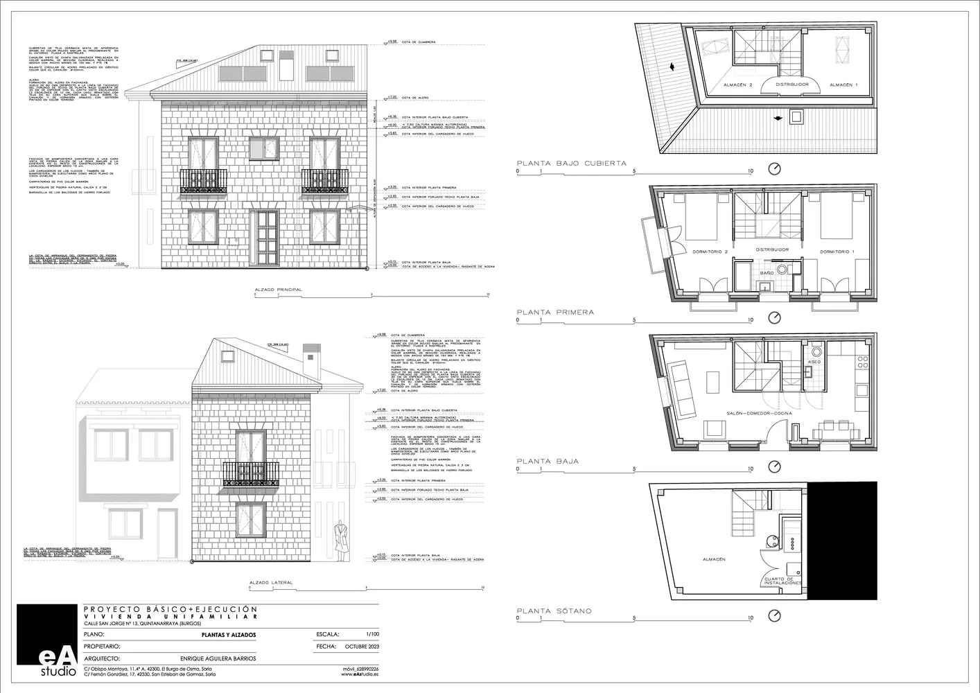
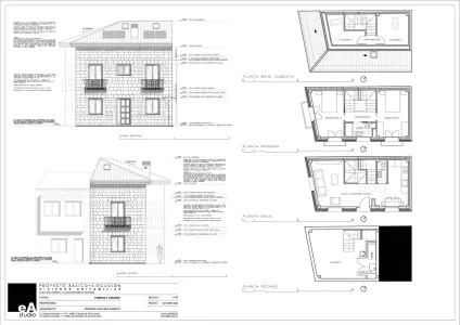
Vivienda en Quintanarraya (Burgos)
Se proyecta una vivienda de reducidas dimensiones en planta donde la escalera central se convierte en el elemento organizador de todo el espacio.
Vivienda en Santa María de las Hoyas
La vivienda amplia, pero sobre todo funcional, cuenta con un patio posterior al que se abren sus estancias principales.
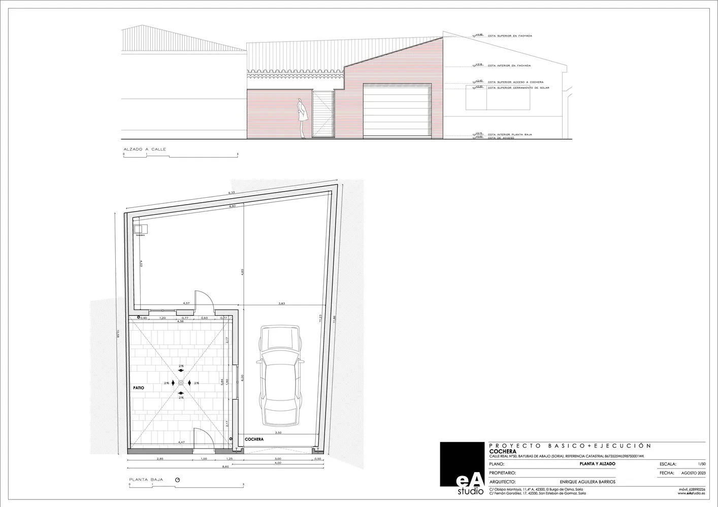
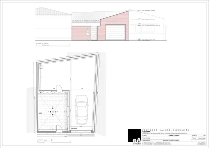
Cochera en Bayubas de Abajo
Una imagen exterior muy geométrica, materializada en el ladrillo dominante en la localidad, define la única fachada con la que cuenta esta cochera.
