Proyectos 2013

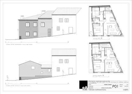
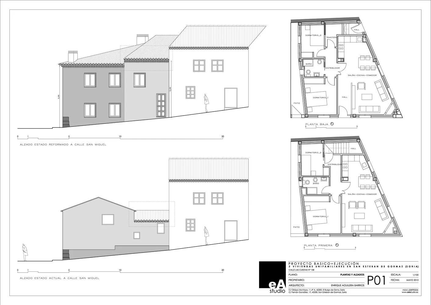
Viviendas en San Esteban de Gormaz

La división material y volumétrica de la esquina busca crear un marco adecuado que enfatice el monumento situado al fondo.

Almacén en San Esteban de Gormaz

Reforma para instalación de ascensor