Proyectos 2009
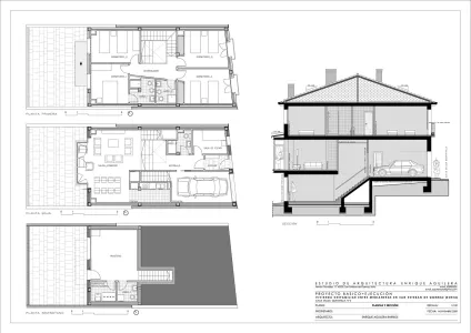
Vivienda en San Esteban de Gormaz
Es esta vivienda se usa la abstracción formal y conceptual como mecanismo de diferenciación frente al variopinto entorno edificado. Dos volúmenes yuxtapuestos fragmentan vertical y horizontalmente la imagen longitudinal de la casa derivada de un solar donde predomina su fondo frente a la anchura.
Viviendas en Retortillo de Soria
Un potente muro desnudo que se quiebra en el acceso define la totalidad de la imagen exterior de dos pequeños apartamentos.
Vivienda en San Esteban de Gormaz
Un gran salón al fondo de la vivienda con un mirador volado totalmente acristalado buscan apropiarse de las imponentes vistas al castillo.
