Proyectos 2024
Hotel Rural en Tarancueña
El proyecto considera al patio existente en el interior del solar como el auténtico corazón del hotel y se ha buscado articular toda la intervención en torno a él, transformándolo y convirtiéndolo en el protagonista de todo el conjunto. Frente a una fachada principal estática, ciega y masiva que respeta el trazado, la geometría y la materialidad de la existente, la fachada posterior se acristala buscando dilatar y expandir el espacio interior y de esta forma se abre casi en su totalidad tratando de hacer participe al patio, con sus formas y texturas verdes, de la vida interior del hotel. Se ha buscado, por tanto, un contraste entre el potente exterior conservado y el liviano interior acristalado que se percibe nada más atravesar el hall de acceso y que se muestra constantemente en todas las circulaciones de la planta baja. Un contraste que más allá de lo material, es también de tipo formal. Frente a la planeidad del exterior, la fachada interior adquiere una tercera dimensión mucho más volumétrica como consecuencia de las tres terrazas que se disponen en la planta primera que, con un vuelo y unas dimensiones considerables, principalmente en la terraza central de observación astronómica, avanzan sobre el propio patio. La componente espacial de la fachada a patio se ve potenciada por el avance de la planta semisótano respecto a todo el conjunto y que a su vez se diferencia materialmente de las plantas superiores.
34 Viviendas Unifamiliares en Segovia
El proyecto plantea la finalización de 34 viviendas existentes en un pequeño pueblo de la provincia de Segovia tomando como punto de partida el estado en el que quedaron las obras allá por el año 2009 cuando se paró definitivamente su construcción. Se proyectan ex novo todas las zonas comunes y los diferentes espacios que constituyen la urbanización.
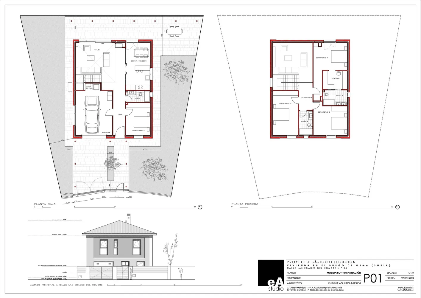
Vivienda en El Burgo de Osma
La seña de identidad del presente proyecto es el salón de doble altura situado en contacto con la fachada posterior del solar, sin duda la más interesante pese a su orientación norte, no solo porque que se abre al río permitiendo la apropiación de sus verdes vistas sino porque aleja la imagen urbana de la calle de acceso y sitúa a la casa en medio del campo.
Hostal en El Burgo de Osma
En la misma línea que en otros proyectos, la intervención busca dotar al patio interior del mayor protagonismo posible, de tal forma que frente a la estrechez y masividad de la calle de acceso, completamente edificada y sin ningún espacio verde, el patio interior se configura como un espacio fresco, aprovechable, confortable, abierto y plenamente accesible a los huéspedes.
Merendero en Langa de Duero
La edificación proyectada presenta dos cuerpos diferenciados que espacialmente muestran la diferente naturaleza que los espacios situados bajo los mismos. El cuerpo de cochera precisa menor altura frente a un espacio como el del merendero en el que la altura interior se convierte en la protagonista.
Ascensores en Belorado (Burgos)
La mejora en las condiciones de accesibilidad existentes lleva a dos comunidades de propietarios situadas en la misma calle a reformar las zonas comunes de sus edificios para instalar un ascensor. En ambos casos, de tipología diferente, hay que tirar la actual escalera y proyectar una de nuevo trazado para posibilitar la superficie necesaria que ocupará el ascensor.
